世合理想大地
:2021-11-01 01:28:23
:康盛裝飾 字號:小中大
INFO
項目地址/ 浙江·嘉興
項目名稱/ 世合理想大地
設計風格/ 中式
項目面積/ 350m2
主創(chuàng)設計師/ 沈霞
項目設計/ 康盛國際設計
軟裝設計/ 設計師&業(yè)主
施工團隊/ 康盛·藝墅精工
實景攝影/ 林峰
康盛易購/ 漢斯格雅、德立淋浴房、夢天木作、西門子家電
-
采菊東籬下
悠然見南山
雖然生活在喧鬧的都市中
但內心卻總有一個世外桃源夢
Picking chrysanthemums under the east hedge
Leisurely see nanshan
Although living in a noisy city
But there is always a dream of paradise
-
01
The hall
門 廳
這套位于世合理想大地的聯(lián)排別墅
把對田園生活的想象變成了現實
入戶門前是一個花園,雖然面積不大
但細微之處依然看的出業(yè)主的精心布置
走進屋內
可以看到入戶的地方
做了一個傳統(tǒng)中式風格的圓形鏤空設計
擺上綠意盎然的植物
可以讓人感受到勃勃生機
This townhouse, located in the most reasonable land, turns the imagination of rural life into reality.
In front of the door is a garden, although the area is not large, but the details still see the owners carefully arranged.
Into the house, you can see the place into the house, made a traditional Chinese style circular hollow design, put green plants, can let a person feel full of vitality.
門廳的左側設計了木質屏風
將空間阻隔開來
這樣可以讓整個客廳多了一些神秘感
不會一覽無余
On the left side of the foyer, a wooden screen is designed to cut off the space, which can make the whole living room more mysterious and not take in everything in a glance.
02
Sitting room
客 廳
客廳窗簾用了一些不透光但不透人的紗窗簾
使得整體空間更加透亮
Sitting room curtain used a few not pervious to light but the gauze curtain that does not show a person, make integral space more pervious to light.
03
Dining room
餐 廳
餐廳背景墻的點睛色是傳統(tǒng)的朱砂紅又叫中國紅
寓意著莊嚴、幸福、吉祥
與中淺色墻體穿插調和
并達到了不至于使得整個頁面刺激中又透出的沉悶感
Dining room ’s background wall of the eye color is the traditional cinnabar red is also called Chinese red, meaning solemn, happy, auspicious. Interspersed and harmonized with medium and light color walls to achieve a dull feeling that does not make the whole page stimulating.
04
The kitchen
廚 房
餐廳和廚房包含更多的中式元素
有山有水
可以讓人忘卻工作的煩惱
享受生活的樂趣
Dining-room and kitchen contain more Chinese style element, have mountain have water, can let a person forget those who work hair be annoyed, enjoy the fun of life.
05
Bedroom
臥 室
由于本案的戶型是一字型
所以整體設計上我們考慮的第一點就是采光和通風
第二點就是家庭成員之間的互動
整個別墅的設計,在軟裝上沒有投入太多
因為家本就是需要有生活的痕跡和烙印的
這樣的家才是屬于自己的家
才是自己夢想中的田園生活
Because the door model of this case is a font, so the first point that we consider on integral design is daylighting and ventilation, the second point is the interaction between family members. The design of the whole villa, in the soft installation did not invest too much. Because the home is the need to have traces of life and brand, such a home is his own home, is his dream of rural life.
-
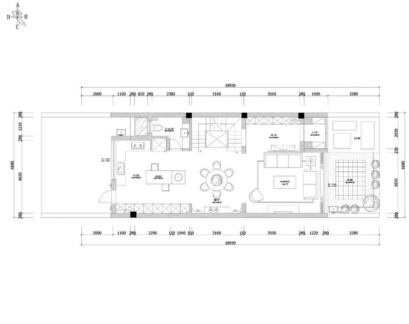
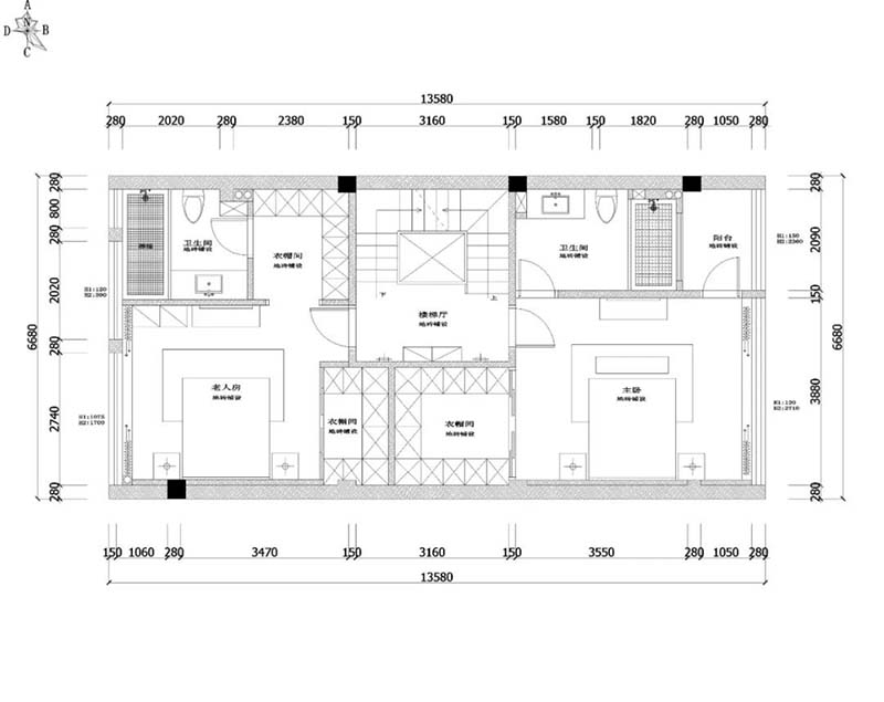
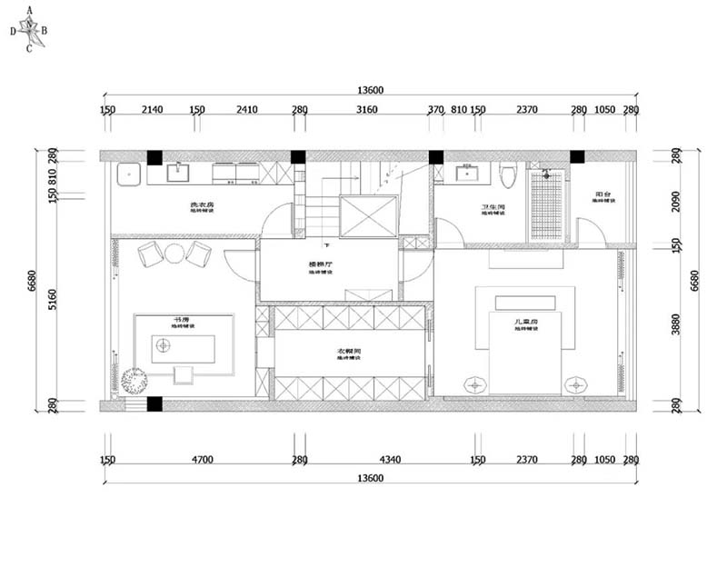
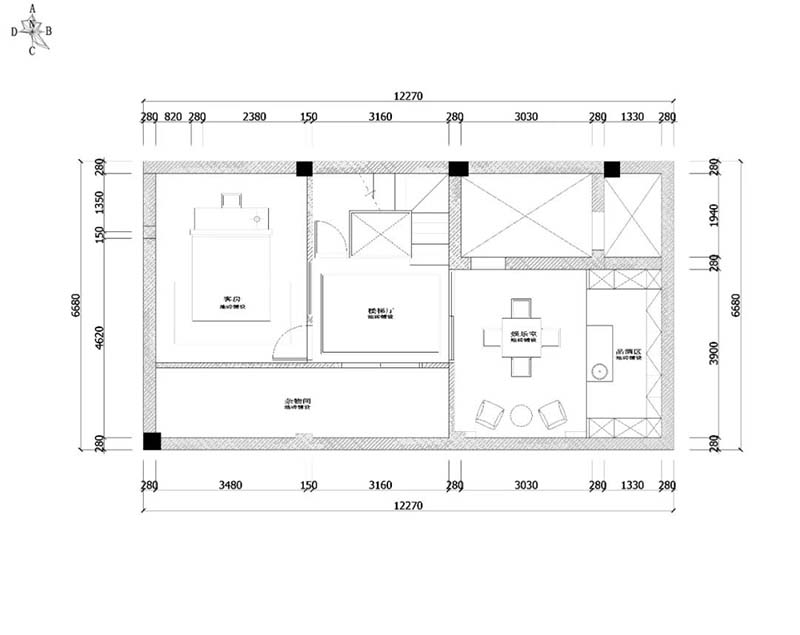
平 面 圖
地下室平面圖
一層平面圖
二層平面圖
三層平面圖
-
DESIGNER 康盛國際設計 主任設計師 沈霞

17705733608
在線預約



